Eladó ipari ingatlan Veszprém 230 000 000 Ft

Leírás

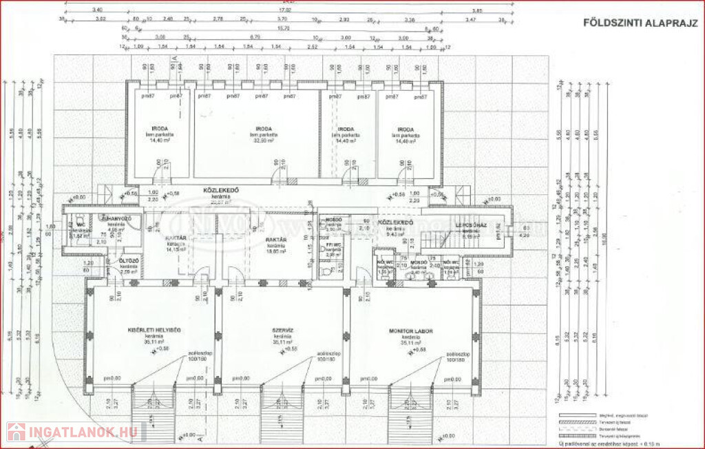
Veszprémben az egyetemi városrészben, 2359 m2-es összközműves sík telken, a 70-es években téglából épült, 2019-ben teljeskörűen felújított, két szintes 354 m2-es, kívül-belül dekoratív és nagyon világos irodaház eladó.

A felújítás során az épület felső szintjén zöld tető került kialakításra. Az ingatlan fűtése elektromos panelekkel megoldott, de az épület falán a gáz is megtalálható illetve 2024-ben 60 db napelemrendszer került kiépítésre.

Az elektromos áram, 3 fázis (3x40 A). A vízfogyasztás, beépített mérők alapján évi elszámolással történik, fogyasztás függő. Földszinten 3 iroda helyiség légkondicionálóval felszerelt. Az összes irodában laminált padló van, a szociális blokkokban hidegburkolat található. Az ingatlan zárt udvarban található, autóbeállási lehetőséggel. Parkolók kialakítottak.

Kiválóan alkalmas irodának, oktatási központnak és informatikai cégeknek informatikai centrumnak is.

Az ingatlan ára 230 millió Ft + ÁFA.

Az ingatlan megtekintése irodánkkal előre egyeztetett időpontban történik. Szívesen állunk rendelkezésre!

Keresünk és kínálunk eladó és bérbeadó ingatlanokat, albérleteket Veszprém, Balaton, Bakony, Káli-medence régióban.
Ügyeleti telefonszámunk: .
A Nívó Ingatlanforgalmi Szakértői Iroda teljes eladó és bérbeadó ingatlan és albérlet kínálatát megtekintheti a oldalunkon.

Irodai azonosító kód: N3794 Nívó ingatlan: N3794

Ipari ingatlan részletei

Ár: 230 000 000 Ft
Méret: 354 négyzetméter
Azonosító: 11588246
Cím: 8200 Veszprém, Kőbánya utca 2.
Telek: 2359 Négyzetméter
Ingatlan állapota: Átlagos
Jelleg: irodaház
Helyiségek: 12